NEUBAU HAUS ALLEGRI – CLARO
NEUBAU HAUS ALLEGRI – CLARO
NEUBAU HAUS ALLEGRI – CLARO
NEUBAU HAUS ALLEGRI – CLARO
NEUBAU HAUS ALLEGRI – CLARO
NEUBAU HAUS ALLEGRI – CLARO
NEUBAU HAUS ALLEGRI – CLARO
NEUBAU HAUS ALLEGRI – CLARO
NEUBAU HAUS ALLEGRI – CLARO
NEUBAU HAUS ALLEGRI – CLARO
<
>
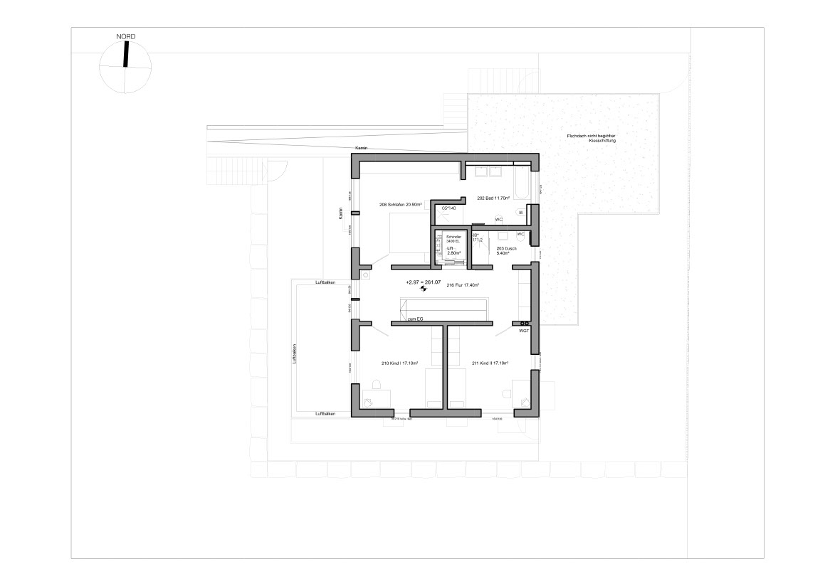
Projektplan
HAUS ALLEGRI
Architetto│Saskia Mrazek
dipl. arch. USI-MBA membro SIA-OTIA-REG A
Progetto│2013
Presse
© 2023 Saskia Mrazek Architect – All rights reserved – webdesign: architecturevisualdesign.ch
Saskia Mrazek Architect dipl. arch. USI-MBA membro SIA-OTIA-REG A | Via A. Ciseri 17 | 6601 Locarno | T +41 91 751 32 27 | info@saskiamrazek.ch